|
Summary
Kakkanad the IT CAPITAL of Kerala, part of Ernakulum district, Kochi, is one of the rapidly developing areas of the city. Kakkanad is continuously witnessing immense growth in the residential, commercial and retail sector. Growth in the IT sector is one of the major factors, as “Kakkanad has the largest IT industrial park in the city known as Kochi Infopark as well as the largest upcoming IT industrial township in the Country, ‘Kochi Smart City’ which is the major economic driver of this area and the state as well.
Kakanad is Located in close proximity to renowned education institutions, health care institutions and with adequate supply of water, the area is ideal for living as well as business purpose. Well connected via NH47, Kakkanad enjoys connectivity within the city along with the outskirt areas. As an added advantage, KOCHI METRO is also getting extended to Kakkanad and that would bring immense growth potential to the locality. Being Kakkanad is the hub of IT/ITES sector and the tremendous growth of industries has already created strong demand for homes, commercial complexes, malls, entertainments hubs etc in the vicinity. The area is good from investment viewpoint as one can generate good rental returns as well as good capital gains.
Now, we introduces, EARTHSPACE LEISURE, an elegantly and functionally designed premium apartment project catering Studios, One and Two BHK apartments that is ideally designed for Individuals, couples and small families who works mainly in the IT/ITES Sector, located at Edachira, the heart of Kakanad with walkable distance to the Infopark and the Kochi Smart City.
| Project Name | : | Earthspace Leisure | |
| Project Type | : | Premium Apartment Project | |
| Project Location | : | Edachira, Kakkanad, Cochin, Kerala, India (Walkable distance from Smart City & Infopark) |
|
| Land Area | : | 22 Cents | |
| Total Units | : | 46 Nors. | |
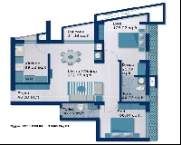
| Unit Type | : | Studio Apartments – 19 Nors. One BHK Apartments – 8 Nors. Two BHK Apartments – 19 Nors. |
|
| Project Status | : | Under Construction | |
| Completion Date | : | July 2017 | |
1. Building Permit - No: TP1-TBA(19352)/2015
2. NOC & Clearance from Fire Department
3. NOC & Clearance from Pollution Control Board
Apartment Types
Amenities
- Elegantly designed entrance lobby and reception
- Fully equipped Health club
- WiFi broadband Internet Connectivity
- Rooftop Common Recreation Area
- Intercom facility
- Landscaped front garden
- Children play area
- 24 Hrs Security
- Generator backup
- 2 Lifts (Including one Cargo Lift)
- Sufficient Natural Light and Air Ventilation through 6 Air & Light ducts
Specifications
Location
EARTHSPACE LEISURE, is located at Edachira, the heart of Kakanad. The project is located in just walkable distance from the Infopark Main Gate and also from the Main Gate of Smart City, exactly just behind the Smart City first phase that is ready for start functioning from Oct 2015.
Kakanad is Located in close proximity to renowned education institutions, health care institutions and with adequate supply of water, the area is ideal for living as well as business purpose. Well connected via NH47, Kakkanad enjoys connectivity within the city along with the outskirt areas. As an added advantage, KOCHI METRO is also getting extended to Kakkanad and that would bring immense growth potential to the locality. Being Kakkanad is the hub of IT/ITES sector and the tremendous growth of industries has already created strong demand for homes, commercial complexes, malls, entertainments hubs etc in the vicinity. The area is good from investment viewpoint as one can generate good rental returns as well as good capital gains.
| Infopark & Smart City | : | 300 Meters (Walkable Distance) | |
| Edachira Junction | : | 400 Meters | |
| Civil Station (Collectorate) | : | 3.2 Km | |
| Bus Station | : | 3.2 Km | |
| Palarivattom | : | 6.5 Km | |
| Edappally (LuLu Mall) | : | 8 Km | |
| Shopping and Leisure Areas | : | 1 Km | |
| Places of worships | : | All in 1 Km |
|
|
Work Progress
| Progress / Sub-Category: |
Price and Availability
Office:
Mobile:
Email :
Office:
Mobile:
Email :






